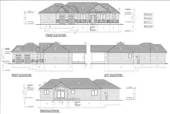
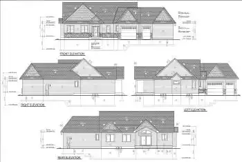
Properties

For Sale
$799,000
98 Mcleish Drive, Kawartha Lakes, Ontario L0K 1W0
  • 3Beds
  • 2Baths
703 Listings